






_edited_jp.jpg)






Mehrere Erweiterungen in modernem, klassischem Stil haben das Hamburger Areal aufgewertet und Nutzern neue Möglichkeiten geboten. Neue Funktionsbereiche entwickeln sich vom Eingang des Hauptgebäudes strahlenförmig in den Innenhof und sind baulich voneinander getrennt. Um die bestehende Tagesordnung nicht starkt zu ändern wurde das Raumprogramm nur kleinteilig angepasst.
Schulkomplex
Erweiterung, LPH 1-4, 2.500 m², Hamburg
.png)




Mensch und Maschine wurden in Hochregallager, Förder- und Technikbereich sowie Bürogebäude in einem Produktionswerk vereint. Gestalterisch abgerundet unter Berücksichtigung eines Corporate Design wurde ein schnell baubares Fassadenkonzept erstellt.
Produktionswerk
Neubau, LPH 1-4, 33.000 m², Soltau







Ein Logistikzentrum auf zukünftige Automatisierung vorzubereiten war ein großes Plus unter den technischen Aspekten des Baus. Für eine Kapazitätserweiterung wurde ein auf Geschwindigkeit und Reproduzierbarkeit optimiertes Baukonzept erstellt.
Logistikzentrum
Neubau, LPH 2-8, 31.000 m², Leipzig





Auf bestehendem Werksareal wurde ein Werk zur Mikrochip-Produktion geplant. Die Fassade ermöglicht die lichtsensiblen Innenräume und eine Verbindungsbrücke schließt an die Bestandsgebäude.
Produktionswerk
Neubau, LPH 1-3, 3.500 m²

_edited.jpg)




In bester Berliner Lage an der Spree wurde ein Stadtviertel mit Wohneinheiten inmitten historischem Charlottenburg errichtet. Um funktionierende Bauteile sicherzustellen wurde bereits früh, wenn möglich mit ausführenden Firmen oder Experten gemeinsam Details entwickelt.
Wohnkomplex
Neubau, LPH 3-5, 10.000 m², Berlin
.png)




Die Idee eines Fussballzentrums wurde mit überdachtem Eingang und Eventhaus erweitert. Umgebende Grünflächen wurden zu Schattenspendern und Teil einer detaillierten Planung.
Eventhaus
Neubau, LPH 1-8, 1.400 m², Contagem

_edited.jpg)






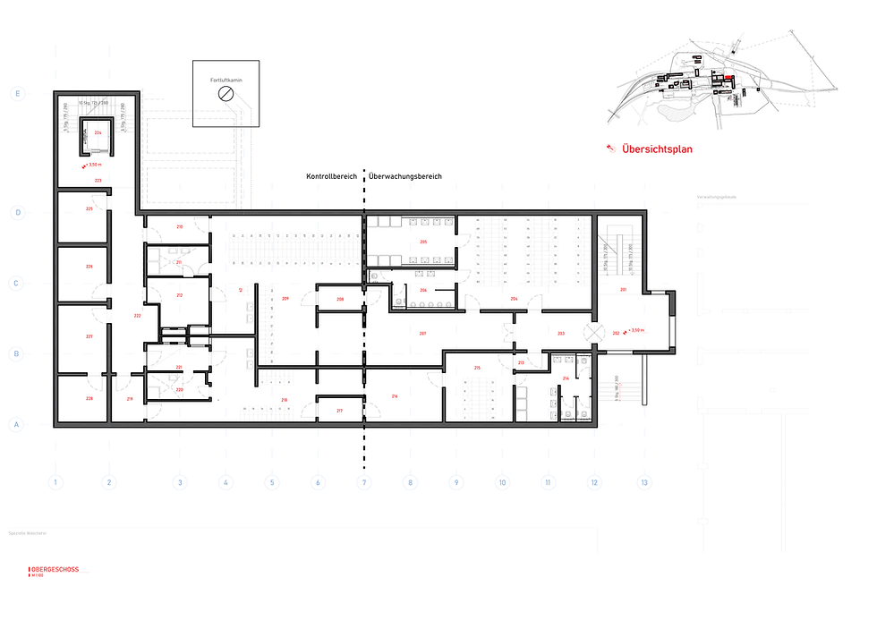
Zur Sicherstellung des Baustellenbetriebs zum Rückbau eines Kernkraftwerks wurde innerhalb einer Baulücke ein Neubau geplant. Ebenso wurde ein Rückbaukonzept der Hauptgebäude erstellt.
Personenschleuse
Neubau, LPH 1-4, 1.200 m², Rheinsberg
.png)




Das Mehrfamilienhaus mit Treppenhauskern wurde zur Genehmigung geführt. Fassade und Bauweise wurden auf einfaches Bauen optimiert, zur Analyse der Geländelage wurden Vermessungspläne und Schnitte angelegt.
Mehrfamilienhaus
Neubau, LPH 1-4,1.300 m², Belo Horizonte










Der Innenbereich eines bestehenden Bürogebäudes in zentralster Lage wurde zum Callcenter umfunktioniert. Neben Arbeitsflächen wurden ein neuer Eingangsbereich, Foyer und dynamische, moderne Verweilmöglichkeiten zur Auflockerung des Arbeitsalltags geplant.
Bürogebäude
Umbau, LPH 1-3, 1.200 m², Belo Horizonte





Die scheinbar veraltet wirkende Kirche hat mit einer Ziegelsteinfassade und größerem Glasanteil ein modernes, doch klassisches Gesicht bekommen. Der Haupteingang mit symbolischem Kreuz wurde mit besonderer Aufmerksamkeit geplant.
Sakralbau
Umbau, LPH 1-4, 360 m², Belo Horizonte


Einfamilienhaus
Neubau, 300 m²

Interior
Möbelplanung, 10 m²

Produktionswerk
Neubau, 1.000 m²

Villa
Neubau, 1.700 m²
.png)
Kongresszentrum
Neubau, 7.000 m²

Feuerwehrwache
Neubau, 150 m²

Kongresszentrum
Neubau, 3.500 m²

Lebensmittelfiliale
Anbau, 200 m²

Umspannwerk
Neubau, 2.000 m²
